OUR OWN STORY
PROJET DE DÉCORATION ET D’AMÉNAGEMENT MAISON DE CARACTÈRE DORDOGNE
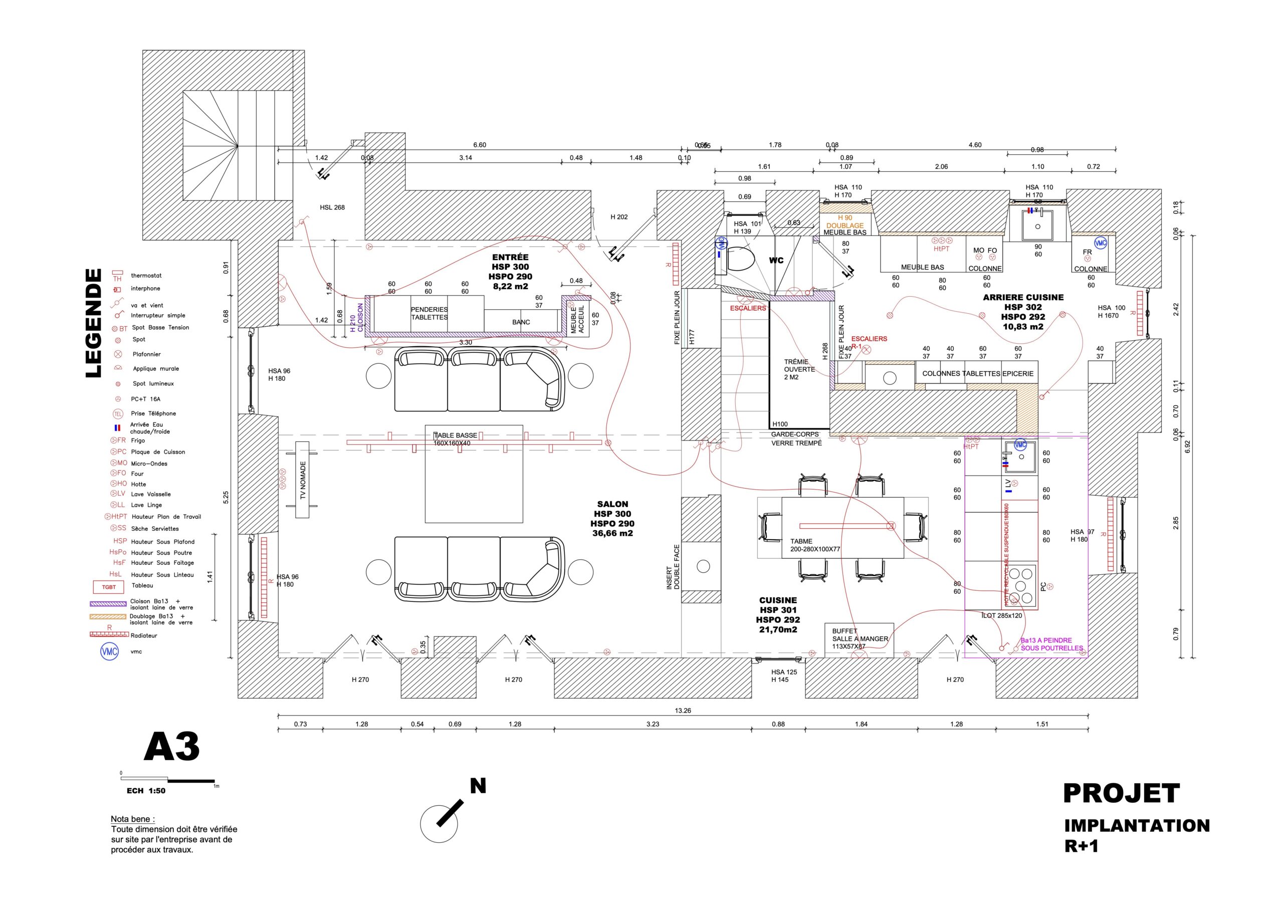
Rénovation complète des espaces jour de cette demeure familiale de caractère.
- création d’une entrée fonctionnelle apportant fonctionnalité et un espace plus cocon pour le salon
- dépose d’ancienne cloison afin d’ouvrir la trémie de l’escalier et apporter une vision traversante pour connecter les différents espaces de cette maison sur deux niveaux
- implantation de la cuisine dans l’ancienne salle à manger
- transformer l’ancienne cuisine en une arrière cuisine ultra fonctionnelle
- modification de la circulation
Conserver les volumes tout en apportant plus de fonctionnalité et permettre une vrai connexion entre les espaces jour au R+1 et le RDC avec une modification de la cage d’escalier.
Visite des lieux :
Dès l’entrée les transformations seront radicales : une véritable entrée permettra de déposer ses affaires avant de pénétrer dans le séjour.Une demie cloison permettra de retraviller la circulation de cette entrée.
Une enfilade de meubles (banc et penderie) permettra de ne pas rentrer directement dans l’esapce salon et créer une séparation entre les espaces nuit et le séjour.
Plus fonctionnelle, cette entrée apportera plus de facailité pour l’implantantion du salon de reception.
Cet espace sera ouvert également sur la trémie, coeur du projet avec l’ajouration d’un placard existant et la pose d’une baie fixe en verre naturel.
Transparence
Contact visuel
sont les mots d’orde !
La salle à manger sera détrônée au profit d’une vaste cuisine dinatoire avec son très grand îlot, pièce de caractère et pièce maitresse de cette rénovation.
La création d’une arr!ère cuisine, à la place de l’ancienne cuisine offrira un maximum de rangements et de fonctionnalités.
Le contact est assuré par la création d’une baie fixe donnant sur la trémie.
Cette dernière sera plus ouverte avec la démolition d’un partie du plancher existant afin de l’ouvrir sur l’espace jour.
La sécurité sera assurée par un garde-corps en verre trempé permettant transparence et modernité.
Les wc indépendants seront légèrement plus vastes et gagnera en intimité avec un accès par l’arrière cuisine.
Le coeur du foyer entre le salon et la cuisine sera préservé avec un insert double face contemporaine permettant une vue sur l’intégralité des espaces jour.
MORCEAU INSPIRANT pour ce projet ///////////////////////////////
IMAGE EN ENTÊTE //////////////////
Toile de Jesse Mockrin

